Ir Leemansstraat 15, Nieuwerkerk aan den IJssel
Over dit huis
Ir Leemansstraat
2912 CD Nieuwerkerk aan den IJssel
Overdracht
- vraagprijs : € 275000 ,-
- Aangeboden sinds : 2025-10-25
- Conditie : kosten koper
- Status : beschikbaar
Indeling
- Aantal slaapkamers : 3
- Aantal badkamers : 1
- Aantal woonlagen : 3
Bouw
- Soort woonhuis : maisonnette
- Type woonhuis : Appartement
- Soort bouw : bestaande bouw
- Bouwjaar : 1964
Energie
- Isolatie : dubbel glas
- Verwarming : blokverwarming
Oppervlakten en inhoud
- Woonoppervlakte : 86
- Externe bergruimte : 6
- Inhoud : 286
Bergruimte
- Schuur/berging : 1
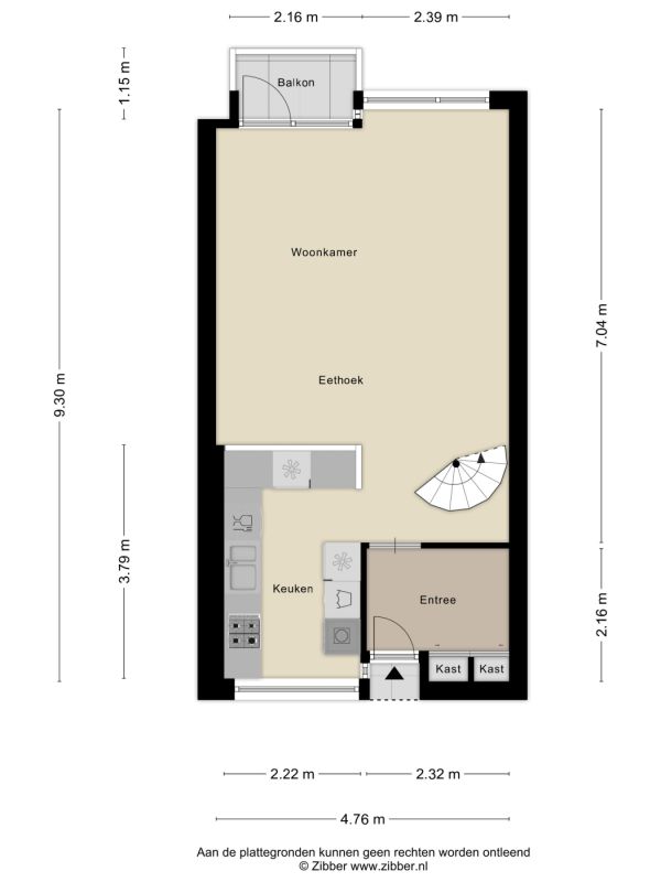
Op een rustige en groene plek in Nieuwerkerk aan den IJssel, op loopafstand van het treinstation en de winkels, ligt deze ruime maisonnettewoning met drie slaapkamers. De woning is verdeeld over de eerste en tweede verdieping en heeft een woonoppervlakte van 86m2.
Indeling
Wanneer je de woning binnenstapt, kom je in de hal met meterkast en een handige vaste kast ideaal voor jassen, schoenen of voorraad. Vanuit hier stap je de woonkamer binnen: een lichte kamer en een prettige indeling. Aan de achterzijde opent de deur naar het balkon, waar je op zonnige dagen heerlijk kunt zitten met uitzicht op het groen.
De keuken bevindt zich aan de voorzijde van de woning en is praktisch ingedeeld, met de aansluiting voor de wasmachine en de geiser. De ruimte biedt volop mogelijkheden voor wie de keuken naar eigen smaak wil moderniseren.
Eerste verdieping
Op de verdieping bevinden zich drie slaapkamers. Twee liggen aan de achterzijde en een aan de voorzijde alle drie voorzien van kunststof kozijnen met dubbel glas (geplaatst in 2009). De overloop beschikt over een vaste kast, een separaat toilet en de toegang tot de badkamer met douchecabine en wastafel. Handig detail: de trap naar de woonkamer is af te sluiten met een schuifdeur.
Bijzonderheden
De vereniging van eigenaren is actief en gezond, met een maandelijkse bijdrage van € 241,-. Verwarming vindt plaats via blokverwarming (voorschot stookkosten) en de woning heeft een energielabel D.
De ligging van de Ir. Leemanstraat 15 is een groot pluspunt. Binnen enkele minuten wandel je naar het treinstation van Nieuwerkerk aan den IJssel, vanwaar je in een kwartier in Rotterdam staat. Ook het winkelcentrum de Reigerhof en Dorrestein, scholen, bibliotheek, sportverenigingen en groenvoorzieningen liggen op korte afstand. Parkeren kan ruim in de straat en de buurt staat bekend als rustig en kindvriendelijk.
- Fijne maisonnette woning met drie ruime slaapkamers
- Bouwjaar 1964
- Gebruiksoppervlakte wonen 86m²
- Grotendeels kunststof kozijnen voorzien van dubbel glas
- Zonnig balkon op het zuidoosten
- Verwarming via blokverwarming en warm water via de geiser
- Fietsenberging van 6m2 op de begane grond
- Actieve Vve, maandelijkse kosten € 241,- + voorschot stookkosten en water
- Recente stukken van de VVE verkrijgbaar via ons kantoor
- In de koopovereenkomst zal de ouderdomsclausule en asbestclausule worden opgenomen